I will therefore try to be cautious and factual in what I say, as it seems clear that the reasons for the bridge collapse will be better identified and shared by those with full access to the facts. The desire to rapidly identify causation (and to lay blame) is understandable, but I would like to minimise speculation.
Media coverage
Much of the coverage in the press has been ill-informed guesswork, attempting to draw together whatever half-truths have emerged in order to flag issues which may or may not ultimately prove to be meaningful.
Prime suspects identified by the media include past failures attributed to the two main design-and-build companies involved in the FIU bridge project, MCM (the contractor) and Figg (the designer). Repeated quality failings are a possible issue, but my experience is that there are almost always many contributing causes to any serious failure.
There are even less likely culprits put forward on Twitter: Trump (of course), a false-flag conspiracy, immigrant labour, and most egregiously of all, "diversity-hiring". For the sake of our sanity (often difficult when reading Twitter), I'll say nothing more about these and return to the suspects fingered in the mainstream media.
"Innovation" is linked by one engineering professor to "unexpected failure", as if to imply that innovation is always too risky an approach to take. He may have been misquoted, but this criticism is repeated elsewhere, giving the impression that 'doing new stuff' is so dangerous that it should never be attempted. Says the prof: "Innovations always bring potential 'failure modes' that have not been previously experienced".
There's no doubt that innovation can introduce new risks, but these are normally managed through appropriate review and risk management. I've seen nothing to suggest that the designer, checker, contractor, highway authority (Florida Department of Transportation, FDOT), or owner's engineer (TY Lin) had any doubt about the safety of any of this bridge's innovations in advance. In any event, it is clear from TY Lin's project specification that innovation was something their client would evaluate positively: they actively sought it out.
What innovation is at issue anyway? Many of the news reports point the finger at Accelerated Bridge Construction (ABC), the method adopted by the contractor to install the bridge span across a busy highway with as little disruption to traffic as possible. Ironically, ABC is something that FIU have a keen interest in, and in promoting their bid to build the bridge, the MCM-Figg team enthusiastically drew attention to the connection.
ABC refers to a family of methods for building bridges faster, usually more safely, and often cheaper. The common elements are the use of offsite or modular pre-construction techniques, so that bridges are assembled in-situ as quickly as possible, rather than built entirely in place. Engineers promoting ABC techniques in the US have come up with some excellent ideas, but it isn't fundamentally anything special, and rapid-installation techniques are widely used around the world. For a bridge such as the FIU Pedestrian Bridge, spanning a busy highway, you'd have to be asking serious questions of anyone who didn't adopt an ABC approach. Again, FIU's project specification made clear that ABC techniques would be acceptable, setting out associated construction requirements.
The span which collapsed was the first of two spans due to be installed, and is a simply supported concrete truss bridge designed to sit on its end-supports without any further temporary support (or indeed, permanent support - more on that later). It was built nearby and then wheeled into place on self-propelled modular transporters (SPMTs), an increasingly common way to build a bridge. In addition to reduced traffic disruption, a key driver for this was the presence of overhead power lines at one end of the bridge, which made craneage a less attractive approach. You can see the power lines at the left hand edge of a general arrangement drawing shared on Twitter:
.@NTSB_Newsroom officials say workers were working on strengthening the north side of the #fiubridge during the collapse. @MiamiHerald pic.twitter.com/nspRErAk7f— Monique O. Madan (@MoniqueOMadan) March 17, 2018
Accelerated bridge construction is cited often in the initial news coverage of this disaster, but it is not in itself relevant, given that the bridge span was designed to span between its piers in both the temporary and permanent cases. More on this below.
Another 'issue' cited often in coverage is simply why the span was allowed to remain in place above live traffic. The highway authority, FDOT, have been at pains to rapidly disassociate themselves from the project, but have stated that it was their role to "authoriz[e] FIU to utilize the aerial space above the state road to build a structure".
My personal experience of building new bridges above existing highway or railway infrastructure is that the infrastructure owner takes a keen interest in the safety of the construction work, especially where the infrastructure will remain open to traffic prior to completion of the bridge. In the UK, they would undertake a full technical approval process, not checking the design, but assuring themselves that the teams involved are competent, that the processes in place are appropriate, and that risks have been properly identified and managed. Where a bridge will be in a temporary state with traffic running below, my experience is they take this very seriously.
Perhaps in the US it is different, but I would have thought that the primary responsibility for the safety of highway users lies with the highway authority, and that in agreeing to "authorize utilization of aerial space above the state road", they would take a keen interest in the details of what was proposed. Presumably they have the power not to permit the work to go ahead if they have any concerns.
In this case, however, there should have been no great concern about running traffic below the bridge: it was, as we will see, designed to span the highway without additional support, and to be able to carry full live loading in the same configuration. The design load required in FIU's specifications is 90 psf (4 kPa), on a span 31-feet (9.4m) wide by 175-feet (53.3m) long; a total live load of roughly 200 tonnes. It was clearly carrying nowhere near this load at the time of collapse.
Much of the initial commentary has noted the obvious disparity between the bridge's temporary condition (a concrete truss spanning simply supported), and the final cable-stayed arrangement shown in design visualisations (and on the drawings):
The suggestion is made that the bridge could not be expected to stand up without the stays in place, which would of course also require the tower to be complete, and the back-span, and the back-span abutment. All of these can be seen on the general arrangement drawing shown above (and on what you will see below).
Tender-stage design
However, the bridge was not designed to rely on the stay system. There are quite a few documents relating to the project online at the FIU's project website. For details of what was being proposed at tender stage, refer to the technical proposal from MCM and Figg. The images and drawings that follow are taken directly from that document. It must be emphasised that the final construction design may have been different, although I have not seen anything in photographs of the bridge which differs from these early drawings.
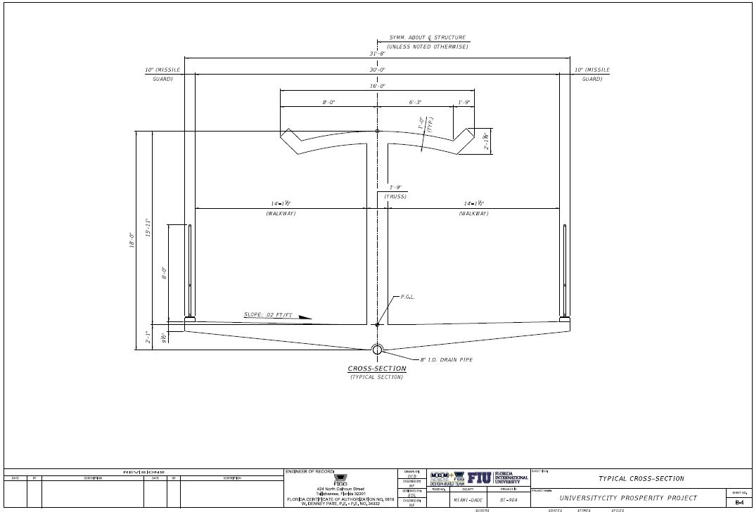
The proposal is a sales-pitch, and much of it reads very badly with hindsight, but there is no blame or shame in that. The picture above summarises some of the salient features of the design. The 5.5m tall concrete truss is conceptualised as a giant "I-girder", with the canopy overhead forming the top flange, the floor forming the bottom flange, and the diagonal truss members the web. The centre-to-centre distance of the flanges is around 5m, which is ample for a pedestrian bridge of this span. Here's the cross-section drawing from the proposal document:
Selection of a truss is in line with FIU's expectations: their own project specification identifies it as the most likely solution.
I've not found a clear explanation as to why concrete was preferred over the much more obvious use of steel for a trussed footbridge. MCM and Figg's proposal notes concrete's good vibration damping and thermal mass. The client specification permits use of both concrete and steel, although it does include a "Buy America" clause, which might make purchase of less expensive imported steel an issue.
The structure is all in post-tensioned concrete. The bottom slab is prestressed both longitudinally and transversely. The top slab is prestressed longitudinally. Most of the diagonal members are also shown as prestressed. A series of design drawings on pages 109-115 of the design-build technical proposal show the prestressing details proposed at the time of tender, and one of these is discussed further below.
Here is the general arrangement drawing from the technical proposal:
Diagrams in the proposal make clear that the structure did not require erection of the tower or stays during construction:
The explanation for the tower and stay system is twofold. Much is said about its relevance as a visual statement, the provision of a landmark structure. It can be seen that the truss arrangement has been adapted to suit the angle of the stays - this appears to be entirely for visual reasons, as you'll see shortly that the stays are not strongly connected to either the deck or the tower.
The diagram below makes clear the second reason for the stays, that they are there to alter the stiffness of the main span, bringing its vertical frequency above 3 Hz and hence out of the range for pedestrian excitation. This is a simplistic approach - I believe most pedestrian bridge designers would have accepted a lower frequency and dealt with the issue by more detailed analysis or by use of damping devices if necessary.
This diagram above states clearly that "the structure meets strength design criteria without the stays". The truss was designed to be strong enough on its own to carry its self-weight plus pedestrian loading. The stays are only there to control vibration, and for visual effect.
Some of this was evident from the photographs of the collapsed bridge. There are no conventional cable connections on the top of the truss structure, only concrete blisters with protruding bolt heads. These could not possibly carry the tension forces required in stays carrying significant loads. Here's the detail shown on the tender drawings:
Note that the stays are not shown as cables, but steel pipes. Even with pipes, it's doubtful whether with a truss as stiff as this, the stays would have sufficient axial stiffness to carry any significant share of imposed load. Reducing vibrations is the best that they can do.
Also note that the connection between the main span and the back span is nothing substantial. In a true stayed bridge, there would be a substantial connection at this point, to carry the longitudinal compressive forces in the bridge deck which balance the tension forces in the stays:
Probably the most interesting detail in the tender-stage drawings is one which shows the prestressing in the diagonal truss members:
In any truss node, quite a lot is happening structurally. The vertical forces in the diagonals will be in balance: in the drawing above, if the left-hand diagonal at the node is in compression, the vertical component of that compression will be matched by a vertical component of tension in the right-hand diagonal. The sum of the horizontal components of force in the two diagonals is balanced by a change in horizontal force between the left-hand and right-hand elements of the horizontal member, which on the drawing represents the roof slab.
As this is a prestressed structure, there will significant compressive forces in the node, with high localised stresses due to the proximity of the stressing bar anchorages. Taken together with the change in forces to be accommodated through the node, this is a highly complex design element, and one which would have been much easier to design in steel rather than in concrete.
Bridge collapse
It is also the exact location where work was taking place immediately prior to the collapse. The news reports make reference to "stress tests" being undertaken at the time. One engineer speculates about adjustments to precamber, although this would not be possible in such a stiff truss structure.
Two days prior to the collapse, the lead bridge design engineer phoned the Florida Department of Transportation (FDOT) to advise that cracks had been found in the bridge. In a statement, FDOT make clear that this message was left as a voicemail, and not listened to until after the bridge had collapsed. This does not seem very relevant, given that in the same statement FDOT acknowledge that their representative did attend a meeting with the project team early on the day of the bridge collapse.
A statement from FIU confirms that this meeting involved the contractor, designer, FIU and FDOT, and that a detailed technical presentation was made regarding the crack. The design engineer is reported by FIU as stating that there were no safety concerns regarding the crack.
Later the same day, work was taking place on the bridge directly above one of the truss nodes. A crane can be seen to be in place, and appears to have been supporting equipment, in two videos which show the bridge collapsing. The first is taken from surveillance camera footage, the second from a vehicle's dashboard camera. The best-quality version of the footage that I've seen can be found on Twitter:
Breaking Video: Dramatic dash cam footage shows the moment of the bridge collapse at FIU. pic.twitter.com/bm63EncDTj— PM Breaking News (@PMBreakingNews) March 17, 2018
As I write, it isn't clear what work was taking place, nor what the various organisations involved had been told about that work. The preliminary drawings indicate this to be the position of dead-end anchorages for the web prestressing, not stressing anchorages, but it's possible that was changed during detailed design.
The designers, Figg, and the contractor, MCM, have said little at this point of time (e.g. see Figg's statement). They probably have little choice: it is very likely to be a condition of their insurance that in the event of a legal claim arising the insurer takes control of what is communicated.
In the video, it can be seen that if the truss is conceptualised like a girder, a global shear failure occurs around the position where work is taking place. Shear in a truss is carried by alternating compression and tension in the web members, so it is possible that the overall failure was caused by failure of a single web member, or by failure of the connecting node.
It appears from the videos that the second triangular frame from the left (upward-pointing, directly below the crane) deforms, with all other triangles retaining their shape. The very first (downward-pointing) triangle on the left is largely non-structural: the vertical on the end is just there to support the future bridge pylon, while the horizontal upper member in this triangle is just there to carry the upper prestressing tendons to their anchorage.
This is as far as I will go in commenting; it is tempting to speculate further, but it can only be speculation. No doubt more information will emerge soon, possibly between my typing this and you reading it.
I am sure there will be more to discuss once further facts come to light. Only then will it be possible to consider what lessons there may be for others working in the bridge design and construction industry.














